ホールに纏う住まい

第9回三井住空間デザインコンペ 佳作
コンペHP https://japan-architect.co.jp/j-kukan_archive/009/result/result2st.html

三井不動産レジデンシャルと新建築社が企画する分譲住宅の実施コンペの応募案です。
課題敷地は2020年の東京オリンピックでも話題となる新しい東京のウォーターフロントである豊洲に建てられる新築分譲マンションの一室です。この一室に「人のつながりを呼ぶ住まい」を計画せよという課題でした。

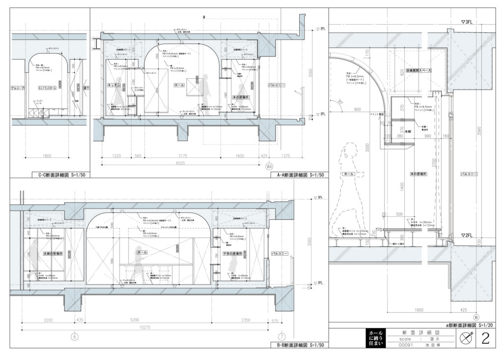
我々は、住まいの中央にホールを設け、そのまわりを囲うように生活スペースを配置する提案を行いました。
ホールは皆で集まることができる大きなスペースとし、生活スペースは個人や少人数で使う身体的なスペースとしました。ホールには出入り口や窓などの7つの開口を設け、住まい全体とつながりを持つ、活動を感じられる場所としました。
住まいには明確な境界は設けずに、お互いの関係性の中でおおらかに住まい、一人のとき、家族がいるとき、お客がいるとき。。。住まいをめぐる関係は刻々と変化します。

住まいには部屋を作るのではなく居場所をつくる。
見え隠れする居場所が纏う生活の雰囲気を共有することによって、「つながりを呼ぶ住まい」となると考えました。